
高圧洗浄が終わり、サッシ窓回りのコーキング工事が終わりました


これから軒裏の塗装を行います。



続いて木破風の塗装を行います。






続いて、雨樋の塗装を行います。


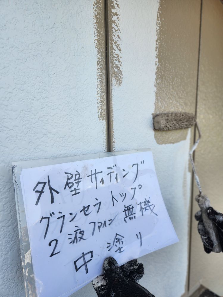
続いて、グランセラトップ2液ファイン無機でサイディング外壁の塗装を行います。






続いて、漆喰壁の塗装を行います。


続いて、戸袋と雨戸の塗装を行います。







続いて、トタン屋根の塗装を行います。屋根の足付けケレンを行います







Information
お知らせ / 施工実績
TOP » 2025年9月中旬山一塗装1級塗装技能士工事現場報告





























続いて、トタン屋根の塗装を行います。屋根の足付けケレンを行います







Contact
塗装に関することなら
お気軽にお問い合わせください
Copyright© 山一塗装 All Rights Reserved.